2Giebelhaus Rhade
Dorsten-Rhade
Das moderne Wohngebäude an der Erler Straße 35 umfasst insgesamt acht hochwertige Wohneinheiten auf drei Geschossen von 81 bis 106 m². Die klare Gebäudestruktur und die durchdachte Grundrissorganisation schaffen ein zeitgemäßes und stimmiges Wohnkonzept.
Der Zugang erfolgt über einen zentralen, gemeinschaftlichen Eingang auf der Rückseite des Gebäudes. Ein Treppenhaus sowie ein Aufzug erschließen alle Etagen barrierefrei. Alle Wohnungen sind zudem barrierefrei geplant und als großzügige 3-Zimmer-Wohnungen mit offenem Wohn-, Ess- und Küchenbereich, zwei Schlafzimmern sowie Badezimmer, zusätzlichem Gäste-WC und Hauswirtschafts- bzw. Abstellraum konzipiert. Große Fensterflächen sorgen für helle, freundliche Räume und eine hohe Wohnqualität. Jede Wohnung verfügt über eine Terrasse oder einen Balkon, die Erdgeschosswohnungen zusätzlich über private Gartenanteile mit Sondernutzungsrecht.
Im rückwärtigen Grundstücksbereich sind je Wohnung ein Kfz-Stellplatz/eine Garage, Fahrradabstellflächen sowie ein zentraler Müllplatz funktional und harmonisch in das Gesamtkonzept integriert.
Lage
Rhade gehört zur Stadt Dorsten im Kreis Recklinghausen und steht für eine hohe Wohn- und Lebensqualität in einer ausgewogenen Mischung aus ländlicher Idylle und guter Anbindung.
Der Ort zeichnet sich durch seine dörflich geprägte Struktur aus und ist harmonisch in eine grüne Landschaft eingebettet. Trotz der ruhigen Wohnlage überzeugt Rhade durch eine sehr gute Verkehrsanbindung. Die Eigentumswohnungen befinden sich an der Erler Straße 35 in Dorsten-Rhade in zentraler und zugleich angenehm ruhiger Lage innerhalb des gewachsenen Ortskerns.
Das moderne Nahversorgungszentrum Rhade mit Edeka- und Aldi-Markt liegt direkt gegenüber und ist fußläufig erreichbar. Zahlreiche Sport- und Freizeitangebote, Vereine sowie Grünflächen in der Umgebung sorgen für eine hohe Wohn- und Lebensqualität. Kindergärten und eine Grundschule befinden sich direkt im Ort.
Verkehrsanbindung
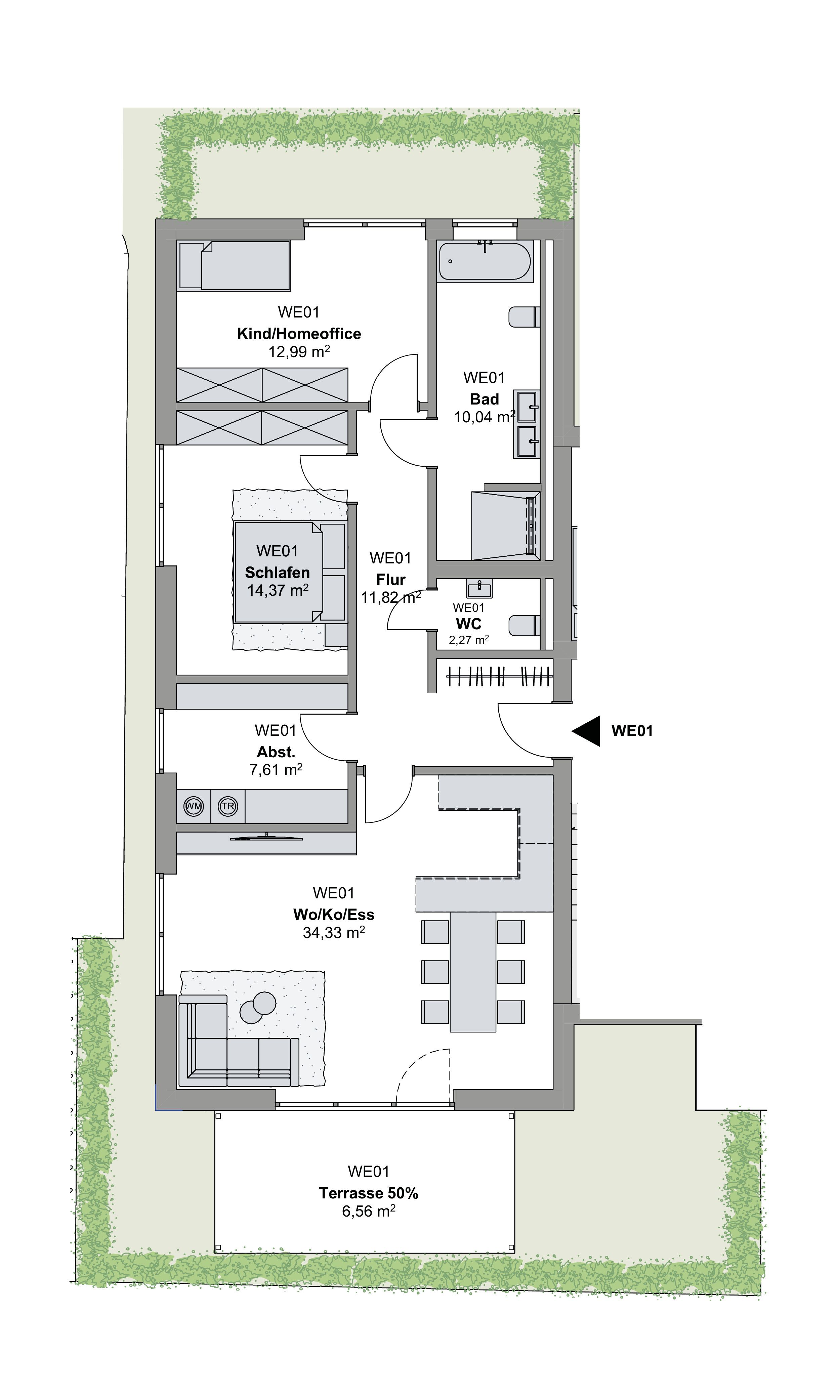
Erdgeschoss
| Wo/Ko/Ess | 34,50 m² |
| Schlafen | 14,50 m² |
| Kind/Homeoffice | 13,00 m² |
| Bad | 10,00 m² |
| WC | 2,00 m² |
| Abstellraum | 7,50 m² |
| Flur | 12,00 m² |
| Terrasse (50 %) | 6,50 m² |
| Wo/Ko/Ess | 32,00 m² |
| Schlafen | 14,00 m² |
| Kind/Homeoffice | 11,50 m² |
| Bad | 5,50 m² |
| WC | 2,00 m² |
| Abstellraum | 6,00 m² |
| Flur | 11,50 m² |
| Terrasse (50 %) | 6,50 m² |
| Wo/Ko/Ess | 31,00 m² |
| Schlafen | 14,00 m² |
| Kind/Homeoffice | 10,50 m² |
| Bad | 5,50 m² |
| WC | 2,00 m² |
| Abstellraum | 5,00 m² |
| Flur | 7,00 m² |
| Terrasse (50 %) | 6,50 m² |
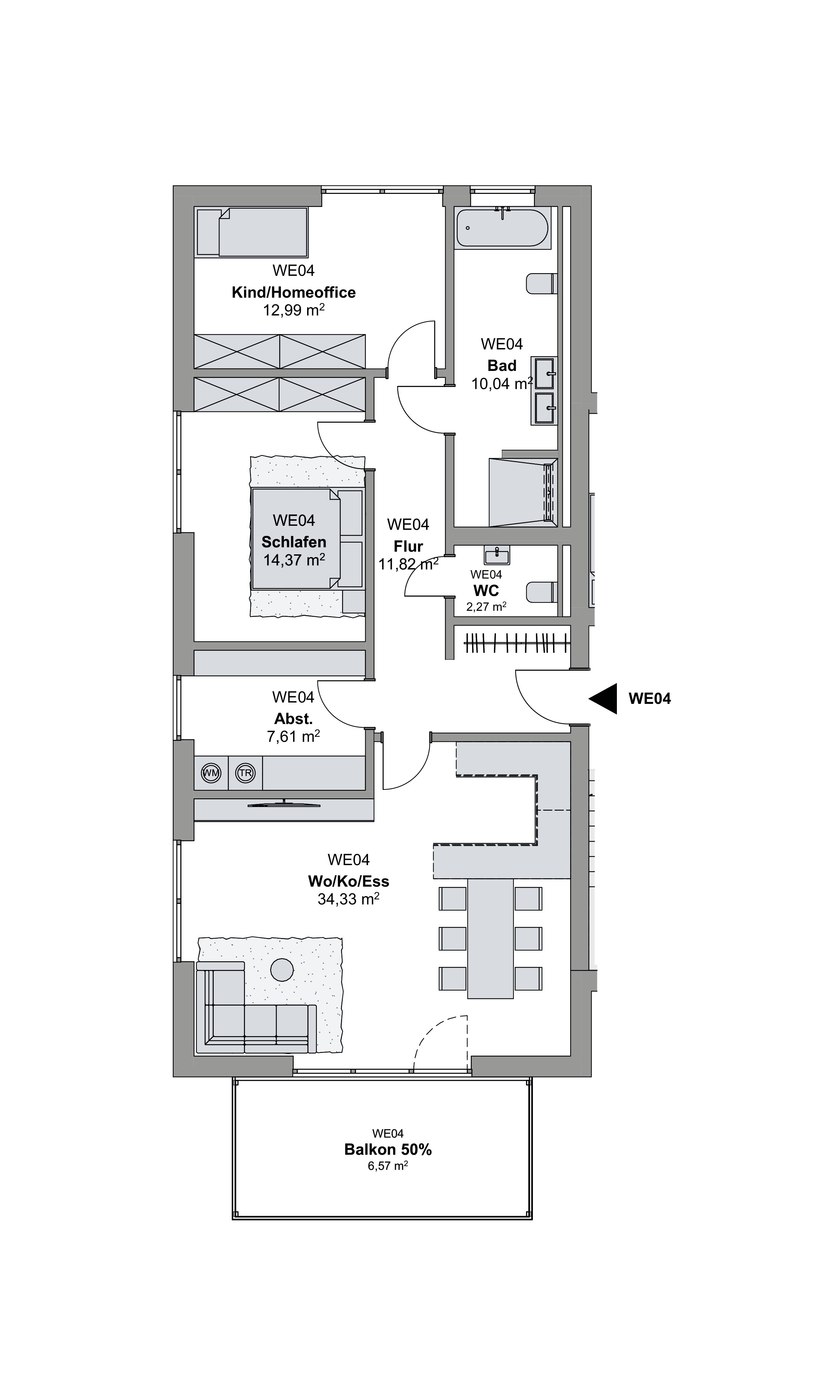
1. Obergeschoss
| Wo/Ko/Ess | 34,50 m² |
| Schlafen | 14,50 m² |
| Kind/Homeoffice | 13,00 m² |
| Bad | 10,00 m² |
| WC | 2,00 m² |
| Abstellraum | 7,50 m² |
| Flur | 12,00 m² |
| Terrasse (50 %) | 6,50 m² |
| Wo/Ko/Ess | 32,00 m² |
| Schlafen | 14,00 m² |
| Kind/Homeoffice | 11,50 m² |
| Bad | 5,50 m² |
| WC | 2,00 m² |
| Abstellraum | 6,00 m² |
| Flur | 11,50 m² |
| Terrasse (50 %) | 6,50 m² |
| Wo/Ko/Ess | 31,00 m² |
| Schlafen | 14,00 m² |
| Kind/Homeoffice | 10,50 m² |
| Bad | 5,50 m² |
| WC | 2,00 m² |
| Abstellraum | 5,00 m² |
| Flur | 7,00 m² |
| Terrasse (50 %) | 6,50 m² |
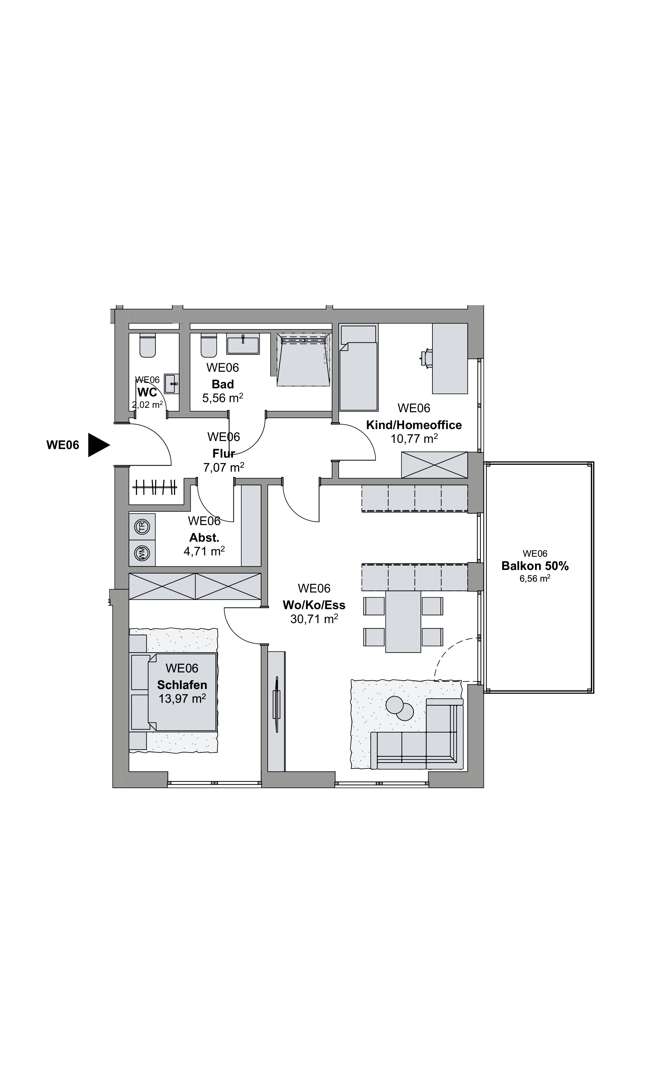
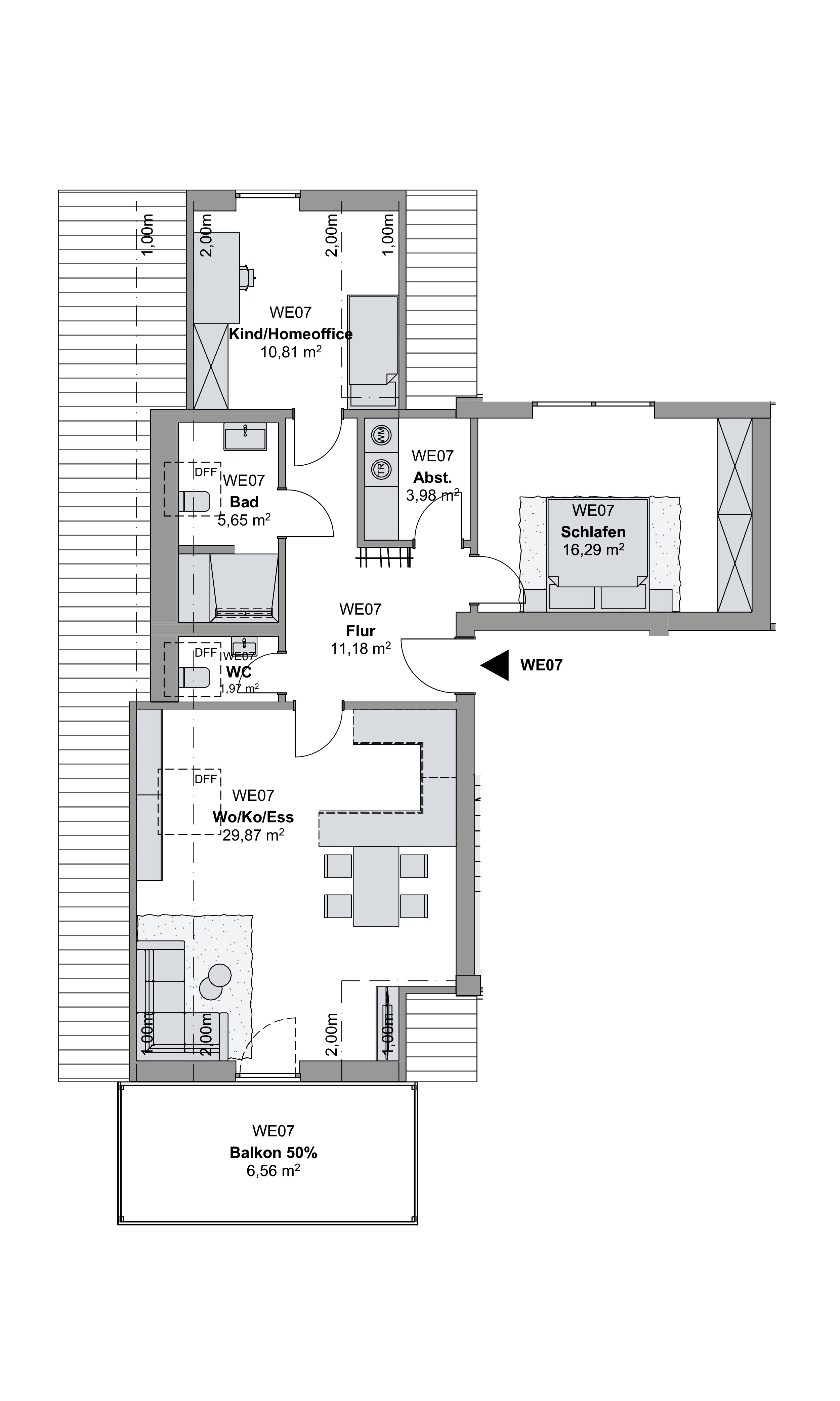
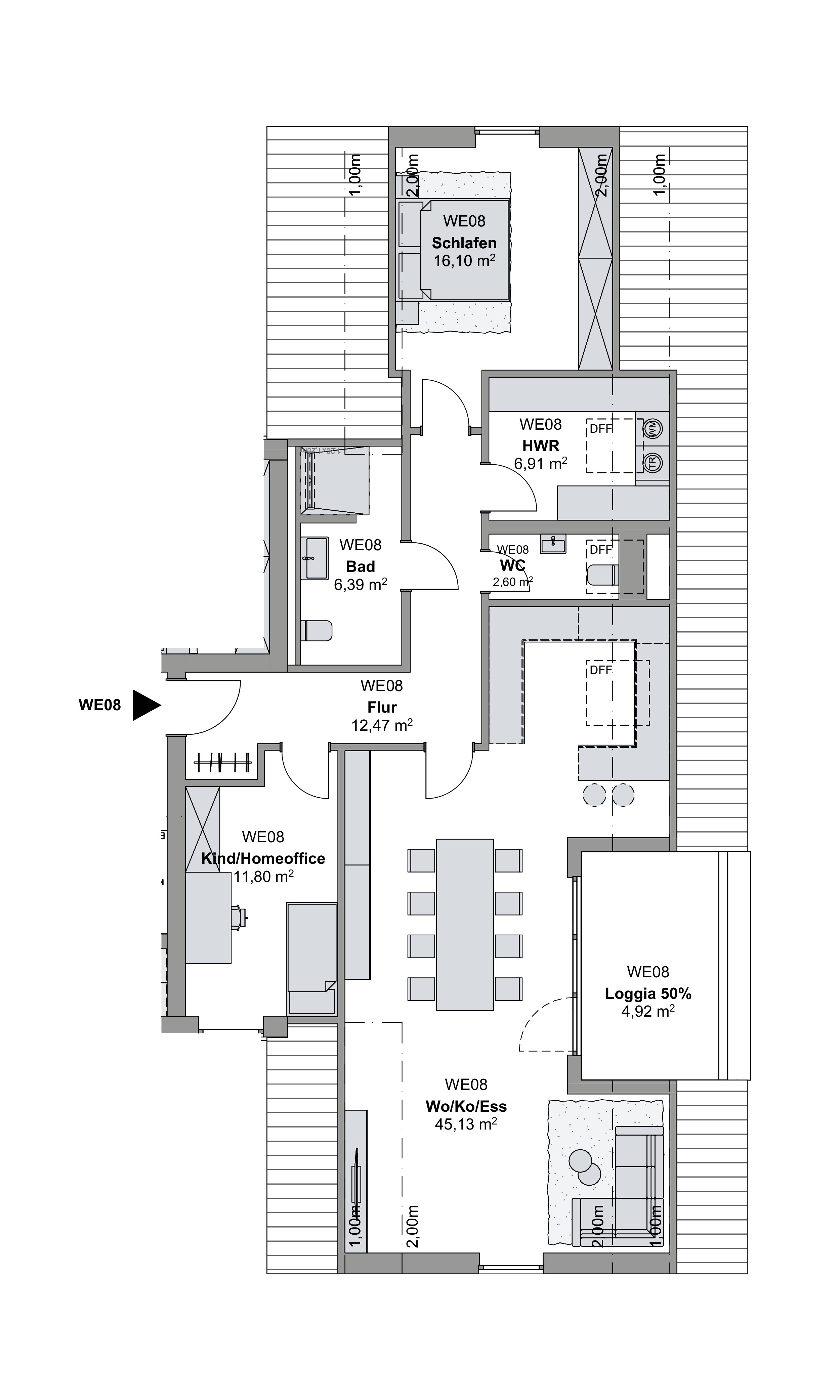
Dachgeschoss
| Wo/Ko/Ess | 29,50 m² |
| Schlafen | 16,50 m² |
| Kind/Homeoffice | 11,00 m² |
| Bad | 5,50 m² |
| WC | 2,00 m² |
| Abstellraum | 4,00 m² |
| Flur | 11,00 m² |
| Terrasse (50 %) | 6,50 m² |
| Wo/Ko/Ess | 45,00 m² |
| Schlafen | 16,00 m² |
| Kind/Homeoffice | 12,00 m² |
| Bad | 6,00 m² |
| WC | 2,50 m² |
| Abstellraum | 7,00 m² |
| Flur | 12,50 m² |
| Loggia (50 %) | 5,00 m² |
Bauherr
Architektur + Statik
Vermarktung














